ARC TMU REDESIGNarc---the-urban-curvehttps://cdn.prod.website-files.com/6967a87b07c78141669f1bdc/6967b5b574935800ee985d71_church_elevation_JAN.pnghsla(35, 100.00%, 43.07%, 1.00)Redesign and transform the TMU architecture building.architectureapr 20252026-01-14T16:51:38.053Z2026-01-16T05:28:57.403Z2026-01-16T05:28:57.403Z

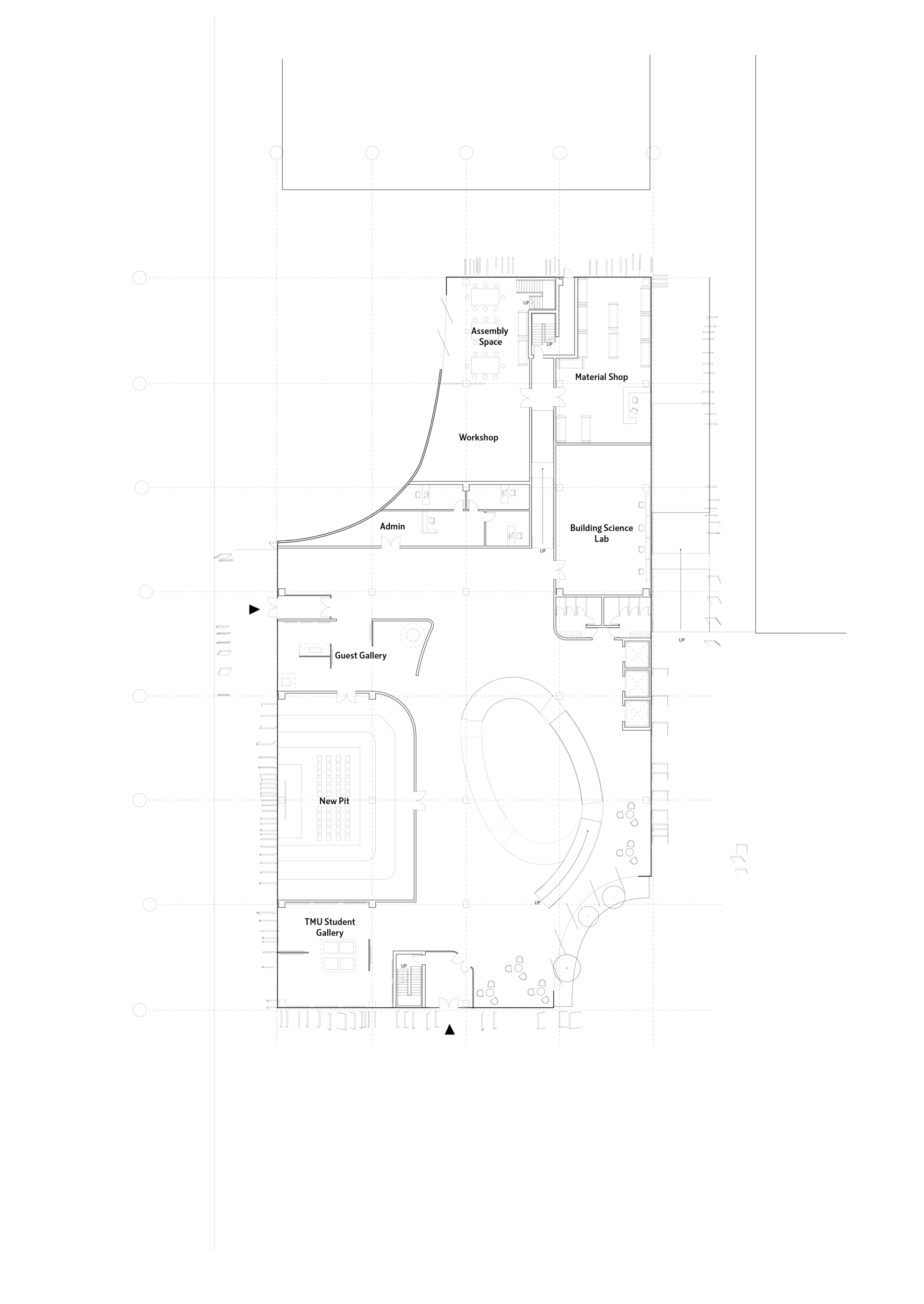
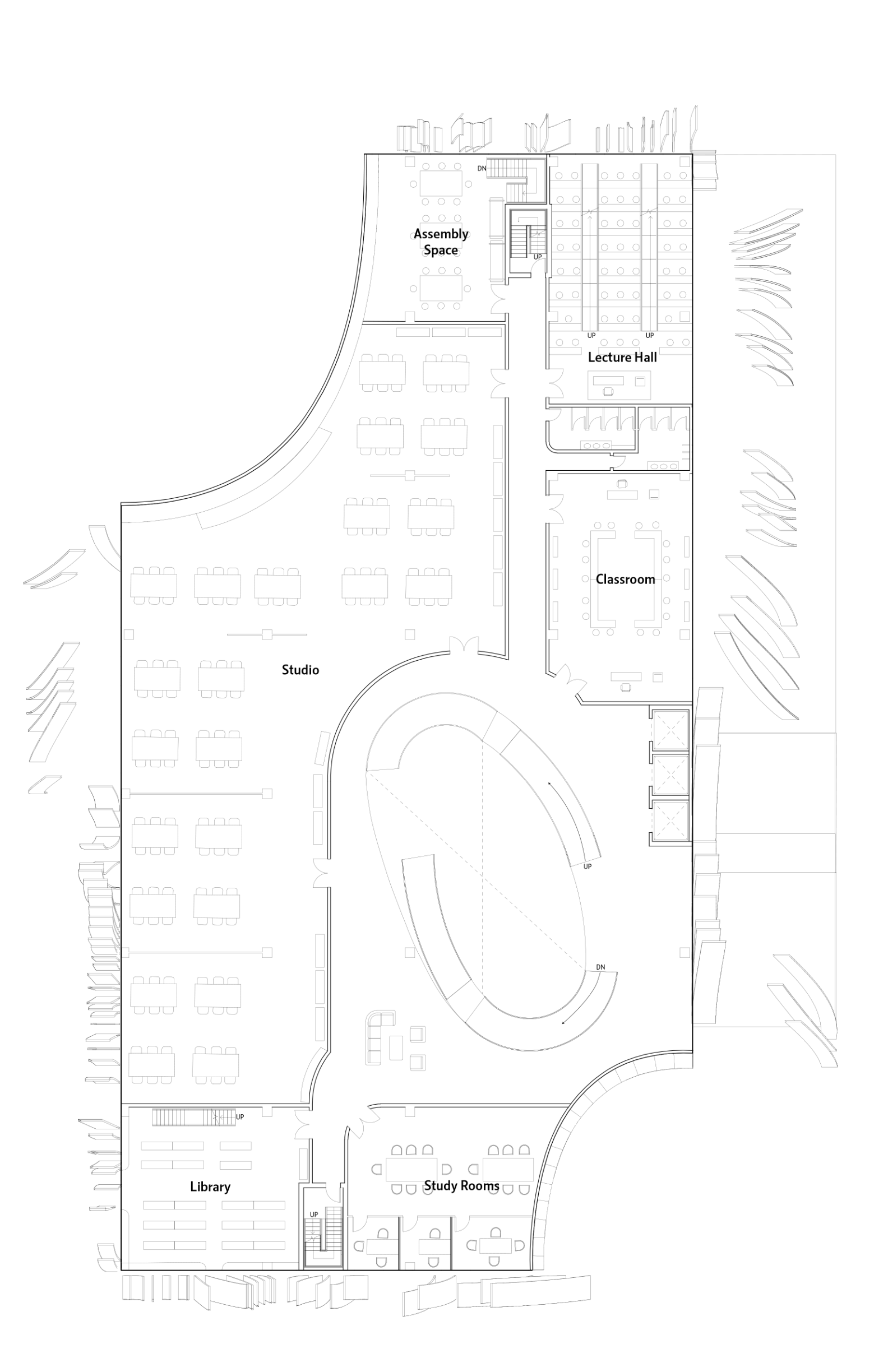
The Urban Curve considers the current TMU DAS building and redefines its identity through bold gestures that bring together art and nature. On the north-south axis, carvings throughout the six-storey façade create a landmark at both the public and private ends. From the exterior, the sculptural voids draw visitors into a vast central atrium through a continuous ramp. This ramp continues the journey, connecting views of the building’s dual narratives of art and nature within the carvings. The contrasting interplay of solid and void elements and material guides movement and experience. The design creates a cohesive story on campus where architecture, art, and nature converge.
.png)


.png)



.png)
.png)
.png)
.png)
.png)
.png)
