YYZ --> BCNyyz----bcnhttps://cdn.prod.website-files.com/6967a87b07c78141669f1bdc/6967cdb468e42d3738557af0_YYZ.pnghsla(249, 64.25%, 60.09%, 1.00)Studio abroad aimed to explore cultural and architectural differences between conceptually connected neighbourhoods in both Toronto and Barcelona. architecturemay 20252026-01-14T17:15:59.856Z2026-01-16T07:05:53.184Z2026-01-16T07:17:55.209Z

This project explored how orthographic drawings can communicate atmosphere and social life through scale. I produced two paired drawings, one of Crews and Tango on Church Street in Toronto and one of La Boqueria in Barcelona.
Both aim to show how unassuming facades act as a social anchor for identity, gathering, and performance.
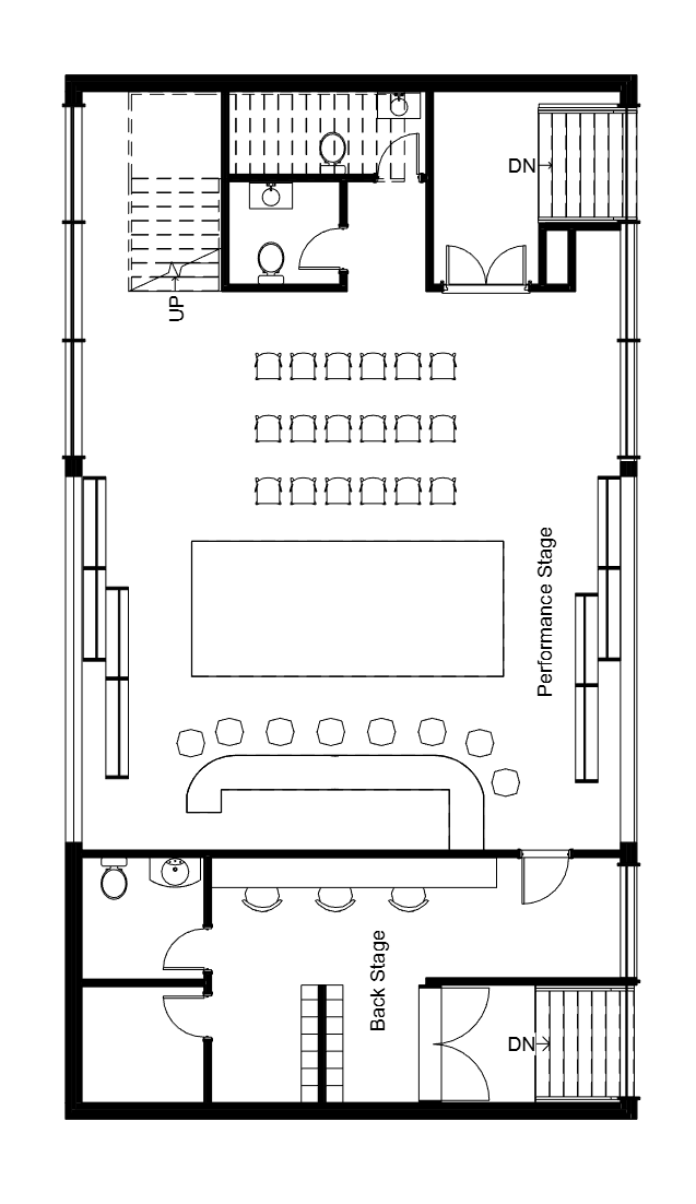
This project reimagines Church Street as a queer focused street museum. Instead of placing queer culture inside a single building, the design spreads it across the sidewalk, façades, interiors, and circulation so the street itself becomes the exhibition.
The goal was to make queer culture visible and active on Church St.
This project takes the same idea and translates it into the context of Barcelona, using La Rambla as the main site. Here the street museum becomes about how La Rambla itself acts as a catwalk and waypoint through Barcelona.
It reframes La Rambla as something that is actively produced by the people moving through it, not just a street.
This sketchbook documents how walking through Barcelona became part of the design process. The drawings focus on crowds, streets, markets, and moments of performance that happen in everyday life.
.png)

.png)

.png)
.png)


.jpg)




